Centro Vastgoed | Industrieel | Instapklar... | 3928037

Guido Gezellelaan 6, 8800 Roeselare
4.205 m² Grondopp.
4.139 m² Bebouwde opp.
10 Parkings
Prijs op aanvraag Prijs

Instapklare burelen/showroom (± 1.400 m²) + opslagplaats ( ± 2.700m²) met 4 sectionale poorten en VH van 7m te ROESELARE !

Omschrijving

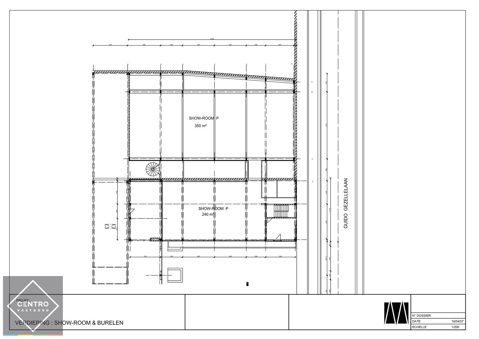
Benaderende OPPERVLAKTEN:
Magazijn: 2.717m²
Kantoor/showroom: 1.422m²
Toegangszone vrachtwagens: 700m² met 10-tal parkeerplaatsen

INDELING:
Magazijn: 
Open magazijnruimte met alle technieken voor het kantoor - toegang tot kantoor glv + trap naar eerste verdieping.
Kantoor/showroom:
Onthaal - burelen - landschapsburelen - vergaderruimtes - kleedruimtes - serverlokaal - technische ruimte - archief - sanitair (toiletten, douche) -... 

AFWERKING:
Magazijn:
 gemetste constructie - houten spanten - polybeton - plat dak geïsoleerd met lichtkoepels en verlichting - 4 elektrische sectionaalpoorten (H: 4,50m- B: 4,00m) - vrije hoogte 7,00m (nok 8,75m) - verwarmingsinstallatie. 
Kantoor: keramische vloeren - vast tapijt - tegelplafonds met airco en ventilatie - centrale verwarming - rookmelders - datavoorzieningen.

NUTSVOORZIENINGEN:
Elektriciteit (gescheiden kantoor/magazijn) 3 x 400V+N - gas - water -regenwater - ventilatie - internet/wifi - airco units - riolering.

LIGGING:
Op 3,5km van op-en afrit E403/A17.  Op 100m van de Kop van De Vaart.
Vlakbij centrum Roeselare (in nabijheid van winkels, restaurants, bakkerij, beenhouwerij etc.)

* Bijzonderheden:
- Prijzen per maand excl. lasten en onroerende voorheffing.
- Afsluitbaar met een 4-delige schuifpoort vooraan.
- Mogelijkheid om alleen kantoor/showroom of alleen magazijn te huren.
- Onze referentie op www.centro.be: P0427 of contacteer ons via 050700102.

CENTRO | BEDRIJFSVASTGOED  is reeds 23 jaar gespecialiseerd in de bemiddeling van commercieel- en bedrijfsvastgoed in West- en Oost Vlaanderen.
Wilt u ook weten hoeveel uw bedrijfsgebouw waard is?
Contacteer ons vrijblijvend voor een marktconforme waardebepaling van uw pand. 

Ref. P0427-D7

Ook benieuwd naar de marktwaarde van uw bedrijfspand?

Wij combineren marktinzicht met ervaring om samen het maximale uit jouw verkoop te halen.

Algemeen

  • Referentie P0427-D7
  • Type Industrieel
  • Bouwverplichting Nee
  • Renovatieverplichting Nee
  • Terrein opp. 4.205 m²
  • Bebouwde opp. 4.139 m²
  • Bebouwdbare opp. 3.549 m²
  • Bewoonbare opp. 4.139 m²
  • Onroerende voorheffing€ 17.851
  • Elektriciteitscertificaat Ja
  • Elektriciteit conform Ja
  • Asbestinventaris Ja
  • Opsplitsbaar Ja

Comfort

  • Beglazing Dubbele

Indeling

  • Aantal parkings 10
  • Magazijn Aantal: 1
    Opp.: 2.717m²
  • Kantoor Aantal: 1
    Opp.: 832m²
  • Kantoor Aantal: 1
    Opp.: 590m²
    Verd.: 1

Comfort

  • Aardgas Ja
  • Airco Ja
  • Centrale Verwarming Ja
  • Distributie Ja
  • Elektriciteit Ja
  • Internet Ja
  • Regenwater Ja
  • Riolering Ja
  • Stadswater Ja
  • Videofoon Ja

Omgeving

  • Warenhuizen - Albert Heijn Ah Roeselare [2,46 Km]
  • Warenhuizen - Aldi 8800 Rumbeke [1,19 Km]
  • Warenhuizen - Carrefour Carrefour Market Roeselare [0,93 Km]
  • Warenhuizen - Colruyt Rumbeke (Colruyt) [0,42 Km]
  • Warenhuizen - Delhaize Westlaan 187 8800 Roeselare [1,45 Km]
  • Onderwijs - Basis En Kleuter Onderwijs Vrije Kleuterschool Arkorum 07 [0,26 Km]
  • Onderwijs - Secundair Onderwijs V.t.i. Eerste Graad [0,51 Km]
  • Gezondheid - Apotheker Apotheek Verbelen [0,46 Km]
  • Gezondheid - Tandarts Algemeen Tandarts [0,39 Km]
  • Vervoer - Treinstations Roulers [0,82 Km]
  • Vervoer - Bus-En/Of Tramhalte Roeselare Vdab [0,1 Km]

Informatieplicht

  • Stedenbouwkundige bestemming Woongebied
  • Stedenbouwkundige vergunning Bouw vergund
  • Dagvaarding en herstelvordering Geen rechterlijke herstelmaatregel of bestuurlijke maatregel opgelegd
  • Voorkooprecht Geen voorkooprecht ruimtelijke ordening aanwezig
  • Verkavelingsvergunning Geen verkavelingsvergunning
  • Overstromingsgevoelig gebied Niet overstromingsgevoelig
  • G-score C
  • P-score D

Bereken uw route

Een vraag? Stuur ons gerust een bericht!

Ons team staat voor je klaar met helder advies en een persoonlijke aanpak. Vul het formulier in en we nemen snel contact met je op.

Uw contactpersoon

Niet gevonden wat u zocht?

Zoekt u een specifiek pand? 
Aangezien DISCRETIE belangrijk is voor bepaalde eigenaars,
plaatsen wij NIET al ons volledig vastgoed online!
Meer weten over dit aanbod? Dit kan via een volgend contactformulier.