Centro Vastgoed | Industrieel | Nieuwbouw... | 4353731

Kwadestraat 113/B.2, 8800 Roeselare
178 m² Grondopp.
262 m² Bebouwde opp.
2 Parkings
Prijs op aanvraag Prijs

Nieuwbouw casco KMO-unit met kantoorruimte bovenop de loods en mogelijkheid tot prachtig dakterras !

Omschrijving

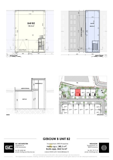
Benaderende OPPERVLAKTEN:
Constructie - bewoonbare oppervlakten
Magazijn: 178

Kantoor: 84 m² + terras 100m²

Grondoppervlakte
Totale grondoppervlakte: 178 m²
Aantal parkeerplaatsen: 2

INDELING:
Magazijn:
Magazijn/opslagruimte, voorzien van poort met aparte loopdeur en glazen deur aan achterzijde - trappenhal met betonnen trap.
Kantoor:
Eerste verdieping 
Casco kantoorruimte met grote raampartijen en optie tot het aanleggen van een dakterras (100m²).


SPECIFICATIES:

  • Constructie: staalconstructie
  • Wanden: gladde geïsoleerde betonpanelen
  • Bevloering: gepolierde en gewapende betonvloer (belasting 3.500kg/m²) gelijkvloers, vloerplaat op de verdieping
  • Dak: plat dak met isolatie, dakranden ALU zwart
  • Deuren en poorten: sectionaalpoort Hörmann (b: 4m x h: 4,5m) met afzonderlijke loopdeur en bovenlicht, glazen deur achteraan
  • Sanitair: afvoeren aanwezig - septische put
  • Vrije hoogtes: loods : 6,70m, kantoor: 3,70m
  • Beglazing en schrijnwerk: overal dubbele beglazing met zwart ALU schrijnwerk zwart/brons
  • Brandklasse: B
Kantoor:
Casco kantoorruimte met mogelijkheid tot ruim dakterras van 100m² - gevel in bronskleurige bardage - grote raampartij met hefschuifraam.

Bedrijvenpark HEXAHUB:
  • 37 KMO-units over 5 gebouwen, 1 open community
  • Duurzaamheid staat centraal
  • Hybride bedrijvencampus
  • Topligging vlakbij autosnelweg E403
BESTEMMINGSMOGELIJKHEDEN:
Volgens het gewestplan gelegen op industriezone: productie, nijverheid, opslag, groothandel (B2B) met nevenactiviteiten. Geen HORECA of kleinhandel mogelijk als hoofdactiviteit!

NUTSVOORZIENINGEN:
Leidingen vanaf het tellerlokaal zijn voorzien voor aansluiting water, elektriciteit, distributie en telefonie.

LIGGING:
Langs de Kwadestraat - Armoedestraat, op 750m van de op- en afrit E403 Roeselare-Rumbeke. Nabij AZ-Delta, Skylinepark, Westwingpark.

* Bijzonderheden
- Verkoopprijs is incl. 2 parkeerplaatsen, te verhogen met 21% btw - géén extra kosten.
- Onze referentie op www.centro.be: Q0845
- Interesse? Neem dan vandaag nog contact voor meer info of bezichtiging: 050700102.

CENTRO | BEDRIJFSVASTGOED is reeds 25 jaar gespecialiseerd in de bemiddeling van commercieel- en bedrijfsvastgoed in West- en Oost-Vlaanderen.
Wilt u ook weten hoeveel uw bedrijfsgebouw waard is?
Contacteer ons vrijblijvend voor een marktconforme waardebepaling van uw pand. 
 

Ref. Q0845

Ook benieuwd naar de marktwaarde van uw bedrijfspand?

Wij combineren marktinzicht met ervaring om samen het maximale uit jouw verkoop te halen.

Algemeen

  • Referentie Q0845
  • Type Industrieel
  • Algemene staat Nieuwbouw
  • Bouwjaar 2025
  • Bouwverplichting Nee
  • Renovatieverplichting Nee
  • Terrein opp. 178 m²
  • Bebouwde opp. 262 m²
  • Bebouwdbare opp. 178 m²
  • Bewoonbare opp. 262 m²
  • Asbestattest aanwezig? Nee
  • Beschikbaar Bij akte

Indeling

  • Parkings (buiten) 2
  • Aantal parkings 2
  • Magazijn Aantal: 1
    Opp.: 178m²
  • Kantoor Aantal: 1
    Opp.: 84m²
    Verd.: 1
  • Terras Aantal: 1
    Opp.: 100m²
    Verd.: 1
  • Parkeerplaats Aantal: 2

Comfort

  • Dubbele Beglazing Ja
  • Elektriciteit Ja
  • Internet Ja
  • Riolering Ja
  • Stadswater Ja

Omgeving

  • Warenhuizen - Albert Heijn Ah Roeselare [5,58 Km]
  • Warenhuizen - Aldi 8800 Rumbeke [2,07 Km]
  • Warenhuizen - Carrefour Carrefour Market Rumbeke [1,46 Km]
  • Warenhuizen - Colruyt Izegem (Colruyt) [2,34 Km]
  • Warenhuizen - Delhaize Kortrijksestraat 272 8870 Izegem [4,07 Km]
  • Onderwijs - Basis En Kleuter Onderwijs Vrije Basisschool Arkorum 08- De Ark [1,36 Km]
  • Onderwijs - Secundair Onderwijs Vrij Technisch Instituut 1 [4,26 Km]
  • Gezondheid - Apotheker Apotheek Princen [0,99 Km]
  • Gezondheid - Tandarts Algemeen Tandarts [0,8 Km]
  • Industriepark Hexahub
  • Vervoer - Treinstations Izegem [3,02 Km]
  • Vervoer - Bus-En/Of Tramhalte Rumbeke Nieuwe Abelestraat [0,27 Km]

Informatieplicht

  • Stedenbouwkundige bestemming Industriegebied voor ambachtelijke bedrijven of gebieden voor kleine en middelgrote ondernemingen
  • Stedenbouwkundige vergunning Bouw vergund
  • Dagvaarding en herstelvordering Geen rechterlijke herstelmaatregel of bestuurlijke maatregel opgelegd
  • Voorkooprecht Geen voorkooprecht ruimtelijke ordening aanwezig
  • Verkavelingsvergunning Geen verkavelingsvergunning
  • Overstromingsgevoelig gebied Niet overstromingsgevoelig
  • G-score B
  • P-score D

Bereken uw route

Bereken uw maandelijkse afbetaling.

Totale aankoopprijs
Eigen middelen
Rentevoet
Looptijd
Te financieren bedrag: € 0
Maandelijkse aflossing: € 0
*Deze prijs is exclusief registratierechten, notaris en eventuele andere bijkomende kosten

Een vraag? Stuur ons gerust een bericht!

Ons team staat voor je klaar met helder advies en een persoonlijke aanpak. Vul het formulier in en we nemen snel contact met je op.

Uw contactpersoon

Niet gevonden wat u zocht?

Zoekt u een specifiek pand? 
Aangezien DISCRETIE belangrijk is voor bepaalde eigenaars,
plaatsen wij NIET al ons volledig vastgoed online!
Meer weten over dit aanbod? Dit kan via een volgend contactformulier.