Centro Vastgoed | Industrieel | Nieuwbouw... | 4304761

Kaaistraat 5/7, 8580 Avelgem
245 m² Grondopp.
245 m² Bebouwde opp.
2 Parkings
€ 1.041 Prijs

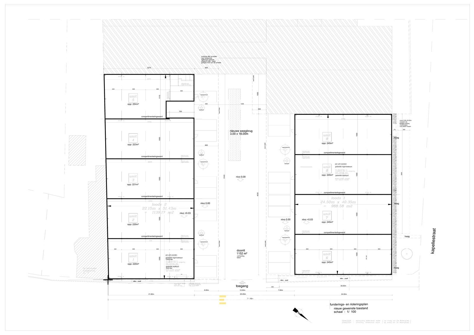
Nieuwbouw KMO-units van 245m² TE HUUR (VH van 7m, 2 parkings, aparte loopdeur en raam), te Kerkhove (Avelgem).

Omschrijving

Benaderende bruto-AFMETINGEN: 
Magazijn: 245m² 
2 private parkeerplaatsen

AFWERKING:
- Stalen constructie 
- Gevelwanden in betonpanelen
- Gepolierde en gewapende betonvloer
- Luifel aan de voorkant !
- Geïsoleerd dak, bestaande uit steeldeck met grote centrale lichtstraat
- Geïsoleerde, elektrische sectionaalpoort (h: 4,5m; b: 4m)
- Afzonderlijke aluminium inkomdeur met raam, voorzien van aluminium schrijnwerk en hogerendementsbeglazing
- Twee stopcontacten + 1 drijfkracht
- Buitenverlichting
- Vrije hoogte 7m

NUTSVOORZIENINGEN:
Elektriciteit (63A) - stadswater - regenwater.
Iedere unit heeft een afzonderlijke tussenteller (de eigenaar plaatst zonnepanelen en een batterij). 
Er is een gescheiden rioleringsstelsel voorzien voor afvoer regenwater en afvalwater. Per unit is een afvoer voorzien voor sanitaire module.
Per 2 units is er een RW-put van 15.000 liter voorzien. Deze regenput is voorzien van een aanzuigleiding socarex (1 per unit), met pomp. 

OMGEVINGSWERKEN en TOEGANGSWEGEN:
Verharding in beton met een ruime doorrit van 12m breedte.  
Weegbrug aanwezig 3 x 18m.

BESTEMMINGSMOGELIJKHEDEN:
Zone voor milieubelastende industrieën.
Opslag, productie, bewerking en verwerking van goederen.

LIGGING:
De KMO-loodsen aan Kaaistraat 5 in Kerkhove (deelgemeente van Avelgem) liggen in de Scheldevallei, in een zone met (watergebonden) bedrijvigheid langs de rivier de Schelde. Vlakbij het rondpunt naar N8 (Oudenaardsesteenweg-Brugstraat) en N36 (Bruggesteenweg).
E17 bereikbaar binnen ca. 20 minuten rijden.

* Bijzonderheden:
- Beschikbaar 01/06/2025.
- Geen gemene kosten !
- Mogelijkheid tot het plaatsen van een laadpaal op eigen kosten.
- Vermelde prijzen zijn excl. onroerende voorheffing (1m forfaitair), voorschot nutsen (€50/m) en BTW.
- Onze referentie op www.centro.be: P0497 of contacteer ons op 050 70 01 02.

Ref. P0497-7

Ook benieuwd naar de marktwaarde van uw bedrijfspand?

Wij combineren marktinzicht met ervaring om samen het maximale uit jouw verkoop te halen.

Algemeen

  • Referentie P0497-7
  • Type Industrieel
  • Algemene staat Nieuwbouw
  • Bebouwing Open
  • Bouwjaar 2026
  • Bouwverplichting Nee
  • Renovatieverplichting Nee
  • Terrein opp. 245 m²
  • Bebouwde opp. 245 m²
  • Bebouwdbare opp. 245 m²
  • Bewoonbare opp. 245 m²
  • Onroerende voorheffing€ 1.041
  • Elektriciteitscertificaat aanwezig? Ja, conform
  • Asbestattest aanwezig? Nee

Indeling

  • Aantal parkings 2
  • Magazijn Aantal: 1
    Opp.: 245m²

Comfort

  • Dubbele Beglazing Ja
  • Elektriciteit Ja
  • Internet Ja
  • Zonnepanelen Ja
  • Regenwater Ja
  • Riolering Ja
  • Stadswater Ja

Omgeving

  • Warenhuizen - Albert Heijn Ah Ronse [8,12 Km]
  • Warenhuizen - Aldi 8580 Avelgem [4,93 Km]
  • Warenhuizen - Carrefour Carrefour Market Avelgem [4,47 Km]
  • Warenhuizen - Colruyt Avelgem (Colruyt) [5,37 Km]
  • Warenhuizen - Delhaize Oudenaardebaan 2 9690 Kluisbergen [1,26 Km]
  • Onderwijs - Basis En Kleuter Onderwijs Vrije Basisschool - Sint-Jan Berchmans [0,47 Km]
  • Onderwijs - Secundair Onderwijs Sint-Vincentiusinstituut [5,18 Km]
  • Gezondheid - Apotheker Apotheek Vercruysse [9,71 Km]
  • Gezondheid - Tandarts Algemeen Tandarts [3,5 Km]
  • Vervoer - Treinstations Anzegem [3,47 Km]
  • Vervoer - Bus-En/Of Tramhalte Kerkhove Kerk [0,32 Km]

Informatieplicht

  • Stedenbouwkundige bestemming Industriegebied voor ambachtelijke bedrijven of gebieden voor kleine en middelgrote ondernemingen
  • Stedenbouwkundige vergunning Bouw vergund
  • Dagvaarding en herstelvordering Geen rechterlijke herstelmaatregel of bestuurlijke maatregel opgelegd
  • Voorkooprecht Voorkooprecht ruimtelijke ordening aanwezig
  • Verkavelingsvergunning Geen verkavelingsvergunning
  • Overstromingsgevoelig gebied Niet overstromingsgevoelig
  • G-score A
  • P-score A

Bereken uw route

Een vraag? Stuur ons gerust een bericht!

Ons team staat voor je klaar met helder advies en een persoonlijke aanpak. Vul het formulier in en we nemen snel contact met je op.

Uw contactpersoon

Niet gevonden wat u zocht?

Zoekt u een specifiek pand? 
Aangezien DISCRETIE belangrijk is voor bepaalde eigenaars,
plaatsen wij NIET al ons volledig vastgoed online!
Meer weten over dit aanbod? Dit kan via een volgend contactformulier.